Allgemeines Wohngebiet "Weinteichaue"
Projektinformationen:
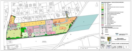
Im Ortsteil Markkleeberg-Ost sollen brachliegende Flächen einer ehemaligen Gärtnerei zwischen Bornaischer Straße und Dösener Straße, südlich der Robert- Schumann-Straße zu einem Wohngebiet entwickelt werden. Der Bebauungsplan wurde auf Grundlage eines städtebaulichen Konzeptes erstellt, welches durch die Gremien der Stadt Markkleeberg befürwortet wurde. Entsprechend § 2 Abs. 4 BauGB und § 2a Satz 2 Nr. 2 BauGB wurde für das Vorhaben eine Umweltprüfung in einem Umweltbericht durchgeführt.
Ziel des Bebauungsplans ist die Revitalisierung einer brachliegenden Fläche einer ehemaligen Gärtnerei im Ortsteil Markkleeberg-Ost. Der Bebauungsplan führt die angrenzende bauliche Nutzung von Eigenheimen im Norden sowie von charakteristischen Gebäuden im Westen fort und weist ein allgemeines Wohngebiet aus, was sich in der Art und im Maß der baulichen Nutzung sowie der Bauweise an den angrenzenden bebauten Flächen orientiert.
Auf Grundlage des erarbeiteten städtebaulichen Konzeptes ist im Zuge der Entwicklung des Plangebietes ein Rückbau von ca. 1,3 ha versiegelter Flächen (Altbausubstanz, verfallene Gewächshäuser etc.) vorgesehen, so dass im Zuge der Entwicklung des Wohngebietes zusätzliche Versiegelungen nahezu vollständig vermieden werden konnten.
Planungsleistungen:
- städtebauliches Konzept
- Bebauungsplan (BP) vgl. gem. Leistungsbild § 19 HOAI (2009)
- Umweltprüfung/Umweltbericht
- spezieller artenschutzrechtlicher Beitrag (saB)
- Unterstützung der Stadt bei der Beschlussfassung mit Beschlussvorlagen
- Vervielfältigung für die Gremien der Stadt
- TÖB-Beteiligung und Versand der Unterlagen

